|

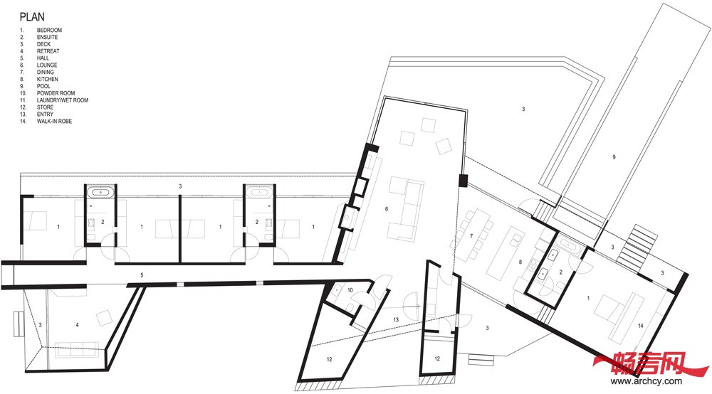
这座海滨别墅位于澳大利亚一个偏远的地区,别墅里的居民可以直接从床边就走到外面狭长的泳池边上。

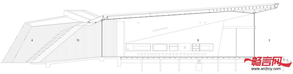
它由墨尔本BBK建筑事务所设计,是一个单层的度假别墅。别墅里的各个房间沿着作为建筑“脊梁”的石墙展开。

这座木质的别墅被命名为“海滨别墅(Beached House)”,外墙使用白蜡树木板做成的,并且在对角方向有一些锌板。

在别墅周围的角落里有几个小型的甲板阳台,这就挡住了一天中不同时段的大风和烈日。

别墅里面的地板是用循环利用的木材做成的。屋里的布局是这样的:一个很开放、明亮的起居室与位于东侧主卧室和位于西侧的四间套房相连。






|