|

信号小屋(Signal Shed)距位于俄勒冈州东北部的Eagle Cap荒野保护区仅几步之遥,它是这里的一个短期住所,也是野外探险家的驻足之处。约瑟夫酋长(美国著名的印第安部落——内兹佩尔塞人部落首领)曾经在这里生活过,在他去世之后,无数的游客和居民无不为这里美丽的自然景色所折服、所惊叹。

为了尊重这里美丽的自然环境,建筑师将信号小屋设计的很小,这样,就不会影响到这里的自然景色,而且,从这里,只要你踏出脚步,就可以走进自然。小屋的位置在码头附近,它的外墙使用黑色的雨幕做成,这样就能让小屋隐匿在山脉和树林的阴影下面了。而且,小屋炭黑色的外墙暗示了在当地发现了火燎过的树木,也典故出了信号山(Signal Mountain)曾经是内兹佩尔塞人部落的烟雾信号发送地点这一历史。

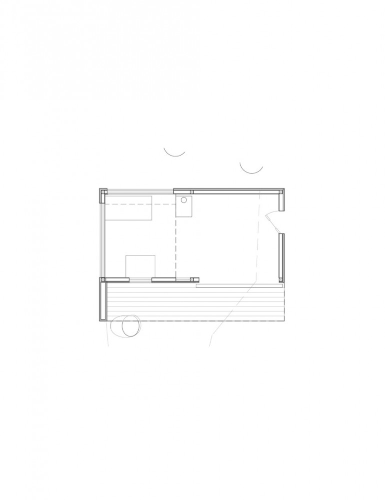
这座山(在霍华德将军打败了约瑟夫酋长之后,便以他的名字命名)是信号小屋的主要背景,也是小屋所能见的主要风景。小屋有一扇大的滑动门,当门敞开时,外面的风景也就映入到了屋里人的眼帘,这就给人们一种在野营的感觉。门上的窗户能让你观赏到瓦洛厄莱克缆车(Wallowa Lake Tramway)和信号山的风景。而另外几个窗户则朝向在小屋的其它三个方向,百叶板条的幕墙可以将它们遮住。因此,如果小屋里长时间不住人,它可以是全部封闭的,而且能保证安全。屋内有一个阁楼床铺、一个壁炉、一个梳理台和一个折叠餐桌,这便使人们可以在这里简单的生活。夜晚时分,光线从雪松板条后面透过缝隙照射着屋里,看起来仿佛一个个有光束的垂直裂片一样。

为了减少小屋对环境的影响,同时也是为了减少建筑费用,小屋的主人、也是小屋的设计师使用了再利用的窗户和、金器件和回收使用的墙板,其他的材料也都是就近取材,另外还安装了一个发电机。小屋西侧的红色雪松外墙是Willamina Portable锯木厂提供的,该公司专门回收利用被砍下或者是无用树木来制成各种商品。窗户、门以及门上用具都从波特兰再建中心采购的,室内装潢材料和地板则来源于IKEA(宜家,瑞典家具卖场,在全球有连锁店),其他木质产品则是通过分销商从Wallowa和Union County的工厂购买的。










|