|

这个小餐馆位于德国奥斯纳布吕克市的LENGERMANN & TRIESCHMANN百货商场里,它是由德国的Jörn Fröhlich设计公司(位于柏林,主攻剧院和零售商场建筑的设计)和土耳其Siddik Erdogan室内设计公司(位于伊兹密尔,是一家专业的室内设计公司)共同完成的。

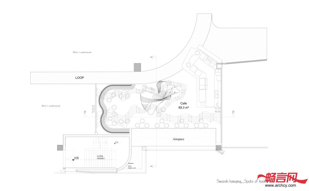
小餐馆的设计理念围绕着“倡导健康环保的生活方式”展开,而这家餐馆则会向顾客提供健康、绿色的食品,所以,材料的选择要体现这一理念。设计组选用来自于自然的材料,使用它们本来的形状来装饰,而不是将它们锯成或者打磨成矩形或者进行磨边。这些材料包括经过自然加固的夹板,在它外面再包裹一层喷过白漆的外皮。所有的功能区装饰品,例如食品展示柜、托盘架、桌椅等等,都与那些纯天然物品装饰融合到一起。

为了使这个天然材料装饰的小餐馆更显高档,设计师们为这里添加了一些白色的潘通椅和白郁金香色的桌子。此外,设计师还为这里设计了一个天花板饰物,它蔓延至整个小餐馆的100平米空间,这样,设计师们对小餐馆的设计理念全部实现。这个波浪形的天花板饰物独特的展开,而且在没有将原来的天花吊顶打开的情况下就能安装。这个饰物的设计过程非常有挑战性,但是得出的成果非常让人满意。






|