|

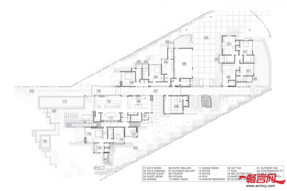
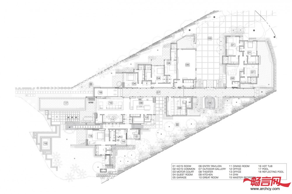
与冷却的熔岩流在一条轴线上的Kona住宅的主轴线不再是一条简单的直线,而是一条为住宅创造了无限视野的对称轴线。自然元素和人造景观虽然分开而立,但是这座别墅将东方火山周围的景观同西方的海岸线风景融合在一起。

这座住宅就像是一系列的豆荚组成一样,而每一个豆荚都有其独特的地方和景色。这些豆荚按照功能巧妙的布局,包括两个带有公用区的卧室、多媒体室、主人套房和起居室。一条室外走廊成是整栋住宅的中心,它连接了沿着住宅中心轴设置两个“豆荚”。

为了让住宅更加环保,两片独立分开的屋顶上安装了光伏电池板,这样就减少了住宅的能源使用量;而可以吸收太阳辐射能的深色熔岩石则可以加热游泳池里的水。雨水在收集后就会倒流进三口干井里,用以浇灌分布在整栋住宅的含水土层。从旧谷仓和铁轨上拆下来的柚木木材做成了住宅的幕墙。再加上层层堆叠的切割熔岩石,这两种材料构成了一座带有夏威夷风情的建筑。整栋别墅的设计灵感来自当地的篮子编织文化,它重新演绎了欢迎仪式上的传统礼物。遍布整栋住宅的、各式各样的雕刻木质天花板和屏风继承了传统的夏威夷木雕风格,并将传统元素恰当地融入了这座现代建筑之中。









|