|

阿根廷Andres Remy Arquitectos建筑事务所完成了Casa Devoto项目。
这座5382平方英尺的住宅位于Villa Devoto,阿根廷布宜诺斯艾利斯的北部地区。
建造这个住宅有一个很大的挑战,就是它位于一个18x24米的地块上,而且位置在两个建筑中间,而这两个建筑它们会影响Casa Devoto的视野,也可能会使它隐没在两个建筑之中。
所以这座住宅顺势紧靠相邻住宅而建,这样就使它能够拥有从内向外的良好视野,而不是注重从外向内的视野。这样就保证了Casa Devoto也拥有良好的视野。
通过这种方式,设计师很好地解决了住宅视野和“被隐没”的问题。而客户从项目一开始便担心的问题都得到了解决。
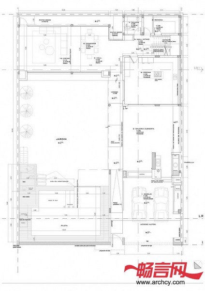
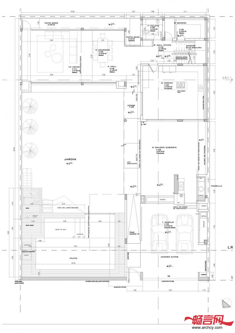
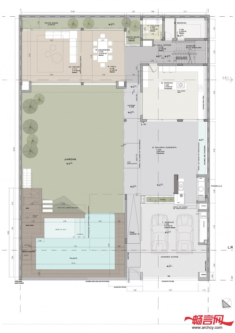
这座500平方米的住宅专门为一对带有孩子的年轻夫妇设计。它比规划的占地面积要大许多,这样就会没有空地来建造花园了。所以,建造一楼的时候并没有占用全部场地,它留出了一些空地作为户外区域。

住宅的起居室、厨房和餐厅面向花园而建,自然光洒满了住宅的角角落落。它的空间布局打破了传统城市住宅的建造方式。石墙仿若是住宅里的指示牌,他指引着人们到达住宅的各个位置。靠近街道的石墙之地很粗糙,而建筑师巧夺天工的为它添加了一面流水墙,这样就让石墙看起来柔和多了。而人们的行程似乎也变得不那么乏味了,因为流水为每一处带来了不同的景观。

位于起居室和邻家住宅中间的有片绿地,这里就是住宅的入口。当阳光照进这里,它就被笼罩在一片美丽清新的自然景致里。

建筑师还对光线的路径进行了仔细的研究,尤其是在设计游泳池位置的时候。水景再一次在住宅的建设中起到了很大的作用。建筑师把游泳池位置设计的比地面高,并为它添加了一面玻璃池壁,这样就可以透过它,从池内看到池外,也可以从池外观察池内。从住宅的不同地点看,它的风景也都不同,从住宅外面看,它就是住宅的亮点。

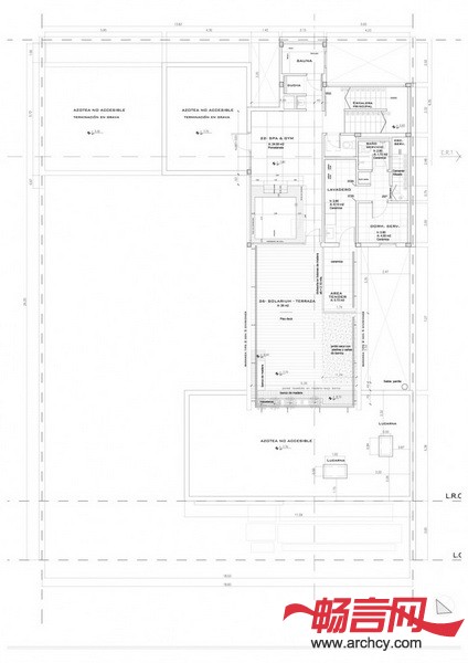
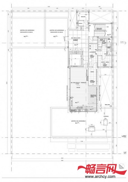
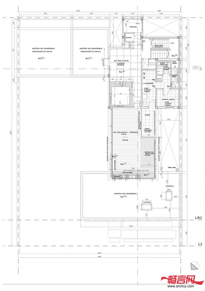
住宅的卧室位于其东侧,可以俯瞰住宅的中心部分 --- 花园。住宅的底楼设置了一个水疗空间,包括:水力按摩池、蒸气浴和带有室外空间的健身房。这一切是为这对夫妇量身打造的。

这座住宅突破了建筑环境的限制,它微妙的将一个城市建筑转化成了自然建筑。它推开了传统家庭建筑的地理界限,将它变成了一个宽敞的住宅,并让这个住宅同时拥有两个享受 --- 位于城市之中,享受自然之美。







|