|

F11住宅位于德国阿伦(Aalen)市郊的一个缓坡上。

住宅的一楼,也是入口所在楼层,是用钢筋混凝土做成的,它嵌入到朝北的山坡里。而二层则是用木瓦作为幕墙的木质结构。

这一层分成了四个空间,每一个都是单个、自成一个小房子的“休息室”(green rooms)。

所以,二楼的木瓦外墙和住宅里侧的白色墙壁形成了鲜明的对比,这就让四个空间明显的分开。

室内的墙壁和屋顶都喷上了白色的漆,这让屋里显得更加宽敞,而且让室内和室外相互作用,形成良好的效果。

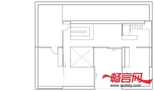
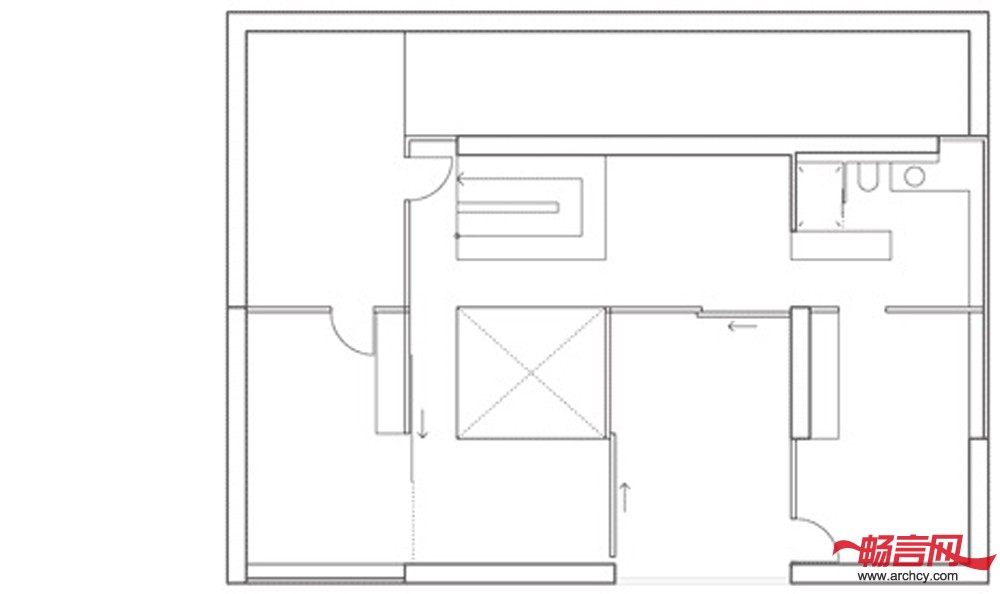
一楼的安排很灵活,中央大厅和玻璃墙将它分成了宴会厅、起居室、餐厅和玩耍区域。

这个住宅还是一个低能耗的住宅,使用二氧化碳中性供暖。




|