|

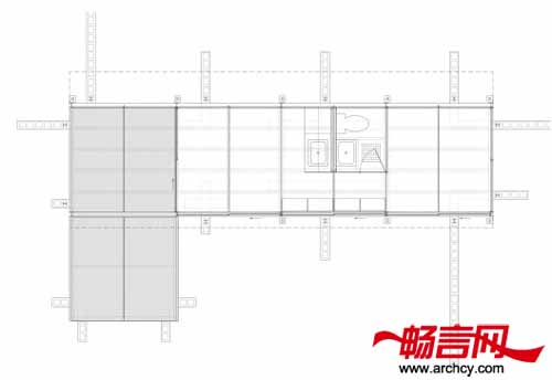
这项工程是为海地灾后重建区域而专门设计的模块式的房屋,它致力于建造一个能够自给自足的住宅小区,并使每个房屋的面积最小化。建筑师计划将这个住宅工程分为四个8 x 8英尺的模块,每一个模块则是一个房屋。设有浴室和厨房的中心区域将室内分为一个卧室和餐厅起居室。第四个模块是一个室外门廊,人们可以在这个区域里进行灵活的功能转换 --- 可以将它建造成各种活动区域,这样就为小区提供了一个多功能的公共场所。由门廊形成的L形区域不只使住宅小区内的各个房屋风格一致,也为每个房屋提供了一个私人花园。

1千瓦的太阳能帆板能够为小区供电,蓄水池能够收集雨水,满足居民的基本用水需要,而洗手间也安装了自动形成堆肥系统。所有的公共设施都位于中心区域内,这也便可以使水暖管道和电线的长度最小化。

小区里每个房屋的一侧都有几个长条似的开口,其中一个开口的位置很低,这样就能使室内的居民能看到外面的花园。而房屋一条条的窗户则都位于矮墙之上,这样便能使屋内的暖气流流出室外。开口并不是由玻璃材料构成的,它是由滑动实心平板、纱窗和装饰的金属网构成的,而金属网也能使每间房屋更安全。

每间房屋的框架由4X4寸的工型钢和钢柱做成,外墙则由玻镁防火板做成。框架是为能抵挡强风和地震而专门设计的,而每个模块的设计出发点则是“建造于大理石墙上的坚固房屋”。大理石墙不但与建筑地块相辅相成,它也标明了每个房屋室外区域的范围。

|