|

“把住宅全部封闭起来……”Shatotto建筑事务所的建筑师说。
灵感
水,世界上最珍贵、储量最大、人们的生活和生命也微妙的与之相融的能源,让孟加拉国成为一个如诗般美丽的国家。
孟加拉国是世界上最大的三角洲,有52条河流顺喜马拉雅山而下,相互交错,流经这里,流入墨西哥湾。雨季时节,这些河流将孟加拉国三分之二的土地,这时候,水就是这个国家主要的景观了。当洪水退去的时候,会留下一层肥沃的冲击土壤,然后人们就会在田地里种上水稻,这里就会变成一片在风中舞蹈的稻穗海洋。
Lalon,孟加拉国的宗教民乐歌手、苏非派信徒和哲学家曾在18世纪时说过:“如果人没有灵魂,那么他也就没有肉体。”跟人的身体一样,建筑也是如此。人的身体由两部分组成,即身体和思维,思维也就是灵魂。建筑也是如此,结构是肉体,大自然是它的灵魂。肉体和灵魂既彼此独立又相互依存。他们属于彼此,又属于两者的融合体。好的灵魂需要好的肉体。
这座建筑的肉体,就是仿若是从天而落的球体转变而来的、由混凝土结构组成的纯方形建筑。

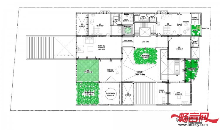
实地
建筑场地由几个多层建筑围起来。考虑到打卡的社会经济条件,建筑师采用了非常简约的建筑表现形式,让外形、材料和植物微妙的融合在一起。传统住宅里的庭院、水池、河边阶梯和植物在这里都有体现,农村和城市的元素相互融合,共同形成了这座位于城市里的住宅。

按照当前房地产开发的趋势来看,这座住宅显然是一种挑战,尤其是要在宅子中间建造一个作为游泳池的水池庭院,对于保证隐私性来说,更是一种挑战。因此,建筑师决定建造一个向内朝向的建筑。
建筑师把住宅的南侧和东南侧设计的让它们能在闷热潮湿的夏天带来凉爽的微风,在冬天能够带来温暖的阳光。中心的“水院”是一个自然通风地点,空气可以排到热的空气中,让庭院真正成为一个享受之地。

梦境
在河边台阶的边上停靠着一只小木船(dingi),它与植物和光线一起共同构成了一个宁静的庭院,让住宅成为一个全部封闭的天然居住地。

当光线投射在墙上,或者当池水拍打在陆地上,或者当陆地碰到植物,或者当植物恰逢微风,或者微风吹来的时候,这一切环境就仿佛触碰、轻抚着你的灵魂一样。“把住宅封闭起来”,这就是住宅的主旨所在,在这样的地点里,灵魂和肉体共依共存,又彼此净化,这样,灵魂就进入到了屋里,融入到了这里,那就让它如此下去吧……







|