|

哪位建筑师不曾梦想着在废弃已久的Biscornet地块上设计一幢大楼?就在这个无比特殊的地点—— 一个位于巴士底狱广场后面、里昂街与运河沿路的交汇处的地点?在它的一边,你可以看到里昂火车站,而另一边则是Bassin de l’Arsenal(一个著名的船舶锚地,它将圣·马丹运河与塞纳河连接起来)的地点?

看着眼前高高耸立的大厦,你不得不承认这座由BP建筑设计院打造的大楼仿若一套量身制作的西装——完全手工制作,处处体现着巴黎人的优雅。

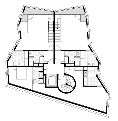
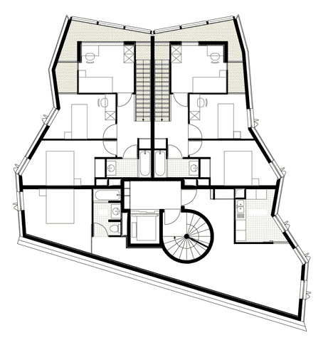
大楼所在的地块呈梯形,为了最优利用这里的土地,大楼紧紧靠着旁边的建筑而建,然后逐渐向前面积一点点减少,最终形成了一个优雅、高耸的轮廓。大楼的侧面用金色的铝质墙板做成,这面墙弯曲成一个角,因此铝板就能在阳光的照耀下呈现出不同的色彩和姿态。

当大楼上所有玻璃窗外面的百叶窗全部关闭的时候,整个建筑成为一个连续的整体,而当居民将百叶窗打开的时候,一个个鲜艳的窗框便呈现在你眼前,仿若是穿上了一件件粉色、紫色和橙色的衬衣一样。

成皱褶的金属墙板一直向上延伸,形成了大楼的屋顶,这便让大楼有一种整体连接感。

位于一层的是Lartigue Foundation美术馆,在这里,其余楼层所使用的建筑材料不再使用,也没有使用铝板。这种建筑材料上的不同非常明显,而美术馆的边缘之处也使用了褶皱的设计。美术馆与其上几层的对比还体现在它的玻璃外墙,它与上面的铝板幕墙形成了鲜明的对比。但是,建筑师在玻璃墙外还设计了一个W形支架,它巧妙的将上下两个部分连接起来。

大楼对光线的变换十分敏感,这得益于它的铝板幕墙和褶皱的外形,这两者的结合使大楼让美术馆与其余楼层的对比更加明显,同时也能更多的变换色彩。铝板幕墙甚至能在几秒钟内从芥末黄变成金色。

尽管大楼只有15间公寓,但是每个双层公寓都有一个凉廊,它们位于百叶玻璃窗的后面,而这些百叶窗则形成了大楼连续、抽象、垂直的侧外墙。大楼反光的一面看起来就像一个船首一样。每两块铝板之间的缝隙形成的夹角反射着每一个细微的瞬间 --- 那些发生在那无可取代、诉说历史、不断变换、永远迷人的巴士底狱广场上的每一个细微瞬间。













|