在线投稿 设为首页  
     
    首页 >  观点  > 正文
N+B:法国爱因斯坦中学
发布时间: 2010-05-17   来源:a963投稿 
上一页 1 2 3 下一页  

一个真正的景观项目

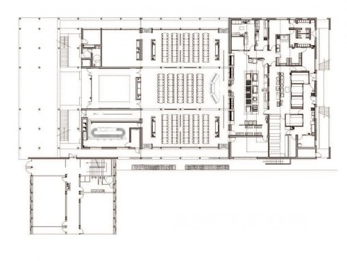
爱因斯坦中学平面图

建筑的空间具有很好的识别性,有自己的空间序列,制造良好的氛围。建筑物之间的花园改善视觉效果和热舒适性,并提供多样性的景观。中学西北保持了一块绿地,学校内显得宽大。

爱因斯坦中学

爱因斯坦中学

责任编辑: 畅言网
上一页 1 2 3 下一页  
评论
昵称: 
RCC关系网

都市实践

CCDI

五合国际

筑博设计

易兰

维思平

 
关于我们 | 联系方式 | 免责声明 | 广告服务 | 给我留言 | 在线投稿
建筑畅言网版权所有
京ICP备11034636号 京ICP证090740号 京公网安备110102003037号
E-mail: editor@archcy.com 电话:86 10 56064666 传真:86 10 63107850
畅言网微信