|

“这是一座融合了当代传统主义和手工艺现代主义于一体的别墅。
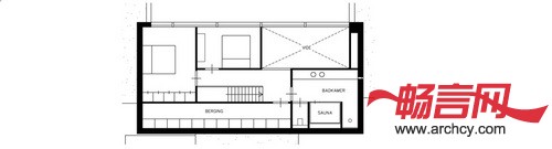
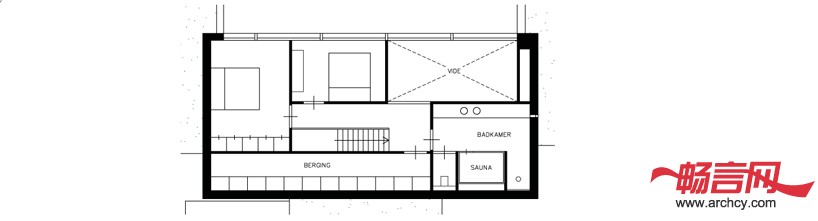
游泳池、桑拿、热水浴缸无疑是这座豪华别墅的最佳标志,但是,它的舒适性却主要是由建筑本身提供的,而不是这些奢华设施。

Rotonda别墅有年轻的设计师Pieter和Thomas Bedaux设计,他们沿袭了Goirle(荷兰一地名)Bedaux de Brouwer建筑事务所的传统,该事务所于20世纪30年代由Pieter和Thomas的祖父建立,后来他们的父亲继承了公司。从上世纪50年代开始,Bedaux de Brouwer建筑事务所的设计就集中在两个方向:现代传统主义和手工艺现代主义。在这两个分支里,安全和舒适是最重要的设计理念。从这点上来看,有着三角屋顶和百叶窗的传统房屋与Bedaux de Brouwer建筑事务所这些年一直建造的宁静、深奥的建筑没有什么大的差别。而同样位于Goirle 的Rotonda别墅融合了这两个设计风格。

从街上看,Rotonda别墅看起来就是一个传统、封闭的住宅,而从花园里看,你就会发现,它是一个现代、开放的住宅。别墅传统住宅一样的外形是由它所处的位置决定的,也因此设计师们为别墅设计了一个三角屋顶,这让住宅更适合Goirle农村风格,而很巧的是,这种风格在设计师的祖父和父亲的作品中有很多的体现。除了两个大窗户之外,别墅在朝向街道的一面都是封闭的,这是因为别墅离繁华道路很近,这样设计可以挡住那里车辆来往造成的噪声污染。这也诠释了别墅的名字Villa Rotonda(封闭的别墅)。别墅并没有参照该事务所在意大利威钦察市附近的著名别墅项目Andrea Palladio的设计,而是按照住宅靠近繁忙的十字路口而量身设计的标志性建筑。此外,住宅外面还有一个水池,它半环绕着住宅,这更凸显了住宅的封闭这一性质。

别墅朝向街道那一侧的设计,尽管略微改动了一些,但是看起来就是典型荷兰住宅,包括三角屋顶和灰色砖墙等等。在花园那一侧,设计完全颠倒过来了,完全是现代气息的住宅。住宅的南面朝向花园,这一面几乎都是玻璃幕墙。在幕墙上还使用了瑞那斯(Reynaers)自动滑动门窗系统CP 155-LS。这让起居室、厨房可以朝向花园,如此一来,别墅的室内和室外就形成了一个连续的整体。窗户使用CS 68-HV材料(hidden vent)做成,也是可以自动打开关闭的。

使用hidden vent(隐蔽通风口)极简抽象派异体CS 68做材料更加体现了别墅的深奥性,设计中简约性设计不只体现在窗户上,这也体现在墙体和屋顶交接处的细节设计上。自动的滑动门窗只是别墅里电子控制设备中的几个而已,这些让原本从建筑本身来讲就很舒适的别墅更加的方便、舒适。

几乎别墅里的每一个房间都朝向大花园,而街道的一侧则几乎都封闭,保证了住宅的安全性,这样的设计不仅让住宅的隐私性更好,又能保证有充足的光线和开阔的视野。这座别墅的设计,两为年轻的设计师完美的结合了先辈的两个设计风格 —— 现代和传统,证明了自己是称职的事务所的接班人。” Bedaux de Brouwer建筑事务所的人员说。










|